A203 hidraulikus lift ütköző
- Cikkszám: D150520
-
Elérhetőség:
Ideiglenes hiány! Érdeklődjön!
-
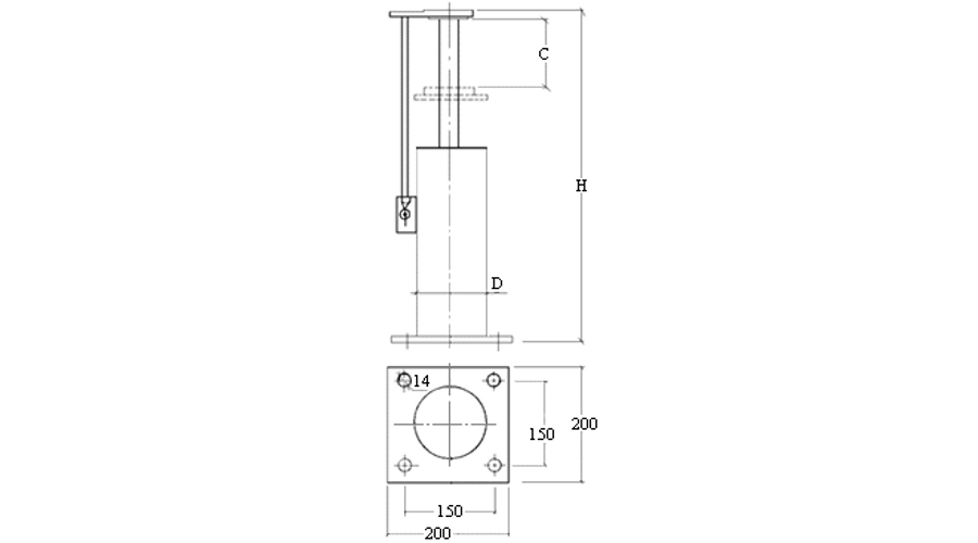
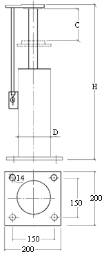
Olaj ütköző nagyobb sebességű felvonókhoz
Termékfülek
Leírás és Paraméterek
95/16 direktíva szerinti tanúsítással rendelkezik
használható olaj jellemzői: Sűrűség 0,87 KP / dm3, viszkozitás 4-7 E ° 50 ° Viszkozitás index > 100
Karbantartás: Olajszint ellenörző és ütközés észlelő kontaktus
| Tulajdonság | Érték |
|---|---|
| Löket (C) | 280 mm |
| Dugattyú külső átmérő (D) | 110 mm |
| Teljes magasság (H) | 815 mm |
| Max. terhelhetőség | 300 - 2000 kg |
| névleges sebesség | 1,6 - 2 m/s |
| max. becsapódási sebesség | 2,3 m/s |
| önsúly | 25 kg |
| olaj mennyiség | 2,5 kg |